
The Learning Barn
Situated on a ridge overlooking the battlefield, The Learning Barn serves as an education and administration center for the Monocacy National Battlefield, accompanying the memorial garden, visitor center, and amphitheater on the site.
The building’s form echoes that of a classic barn and mimics the existing visitor center on the site. The Learning Barn is host to a large event space, auditorium, classrooms, and offices, and offers expansive views of the adjacent cultivated fields memorial garden.
ARCH 403 | 7 Weeks | Professor Brandon Lipman

Reclaimed Grounds Site Plan
Reclaimed Grounds, located adjacent to the Monocacy National Battlefield, reorients visitors from the history of the Civil War to the history of the site as agricultural land. To achieve this goal, the design intervention makes very little impact on the existing trees and topography, which naturally provides a connection to the battlefield and mimics the surrounding farmland. The memorial garden and paths cut through cultivated agricultural land, which imitates the patchwork appearance of farmland, and allows visitors to connect with the storied history of agriculture in the surrounding area.
Reclaimed Grounds, located adjacent to the Monocacy National Battlefield reorients visitors from the history of the Civil War to the history of the site as agricultural land. To achieve this goal, the design intervention makes very little impact on the existing trees and topography, which naturally provides a connection to the battlefield and mimics the surrounding farmland. The memorial garden and paths cut through cultivated agricultural land, which imitates the patchwork appearance of farmland, and allows visitors to connect with the storied history of agriculture in the surrounding area.



East Elevation
North Elevation
South Elevation

Garden Perspective




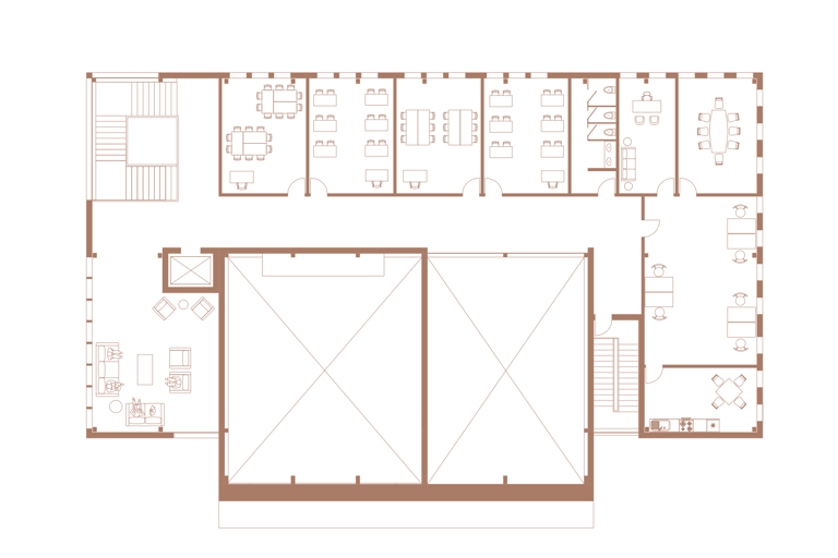
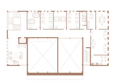
Ground Floor Plan
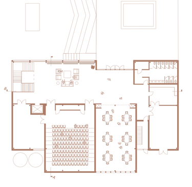
Second Floor Plan


Section B


Section A








Break-out Space Perspective
Classroom Perspective
Lobby Perspective
Event Space Perspective
Parti Diagram
Relationship to Outside
Volumes








Wall Section


Building Structure
Thoughtful material selection further reinforces the project’s eco-conscious approach. The exterior is clad in oak wood from trees native to the area, and natural sheep wool insulation was chosen for its renewable qualities and excellent thermal performance. In addition, double-pane windows offer improved energy efficiency, and better noise reduction for the building.


Sustainable Systems
Sustainability played a key role in the design of the Learning Barn, seamlessly integrating environmental responsibility with functional architecture. The slope of the roof not only reflects the traditional farmhouse typology, but also serves the functional purpose of collecting rainwater for toilet flushing, and irrigating the surrounding cultivated fields and gardens.
