
Harmonic Haven
In this seven week project, principles of procession and space making, functional organization, climate design, and room and facade design, were explored in an urban context. In depth site analysis led to the development of a design conscious of U Street's culture and history.
The main concept of this design centers around a cone shaped reading room extending up 3 stories, with balconies on the top 2 floors, allowing for natural light from the skylight and views of the main space from each floor.
ARCH 401 | 7 Weeks | Professor Adan Ramos


Site Axonometric


Site Plan




Section A
Section B
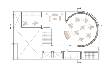
First Floor
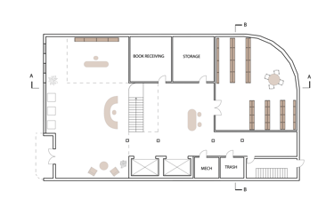
Second Floor
Third Floor
Fourth Floor









Elevation




Second Floor Perspective
Third Floor Perspective


Exploded Axonometric
Program Diagram
Parti Diagram
Sunlight Diagram








Buffer Spaces Diagram






