
Oblique Apartments
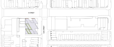
Nestled at the vibrant intersection of H Street and 12TH Street NE in Washington DC, stands a multi-family residential apartment complex that seeks to maximize solar access, while also creating a dynamic visual presence. The design of this building consists of strong 30 degree angles and stepped floors, optimal for sun exposure on the rear of the apartment complex, to ensure each unit enjoys unobstructed access to sunlight.
Situated at a prominent corner, the building offers ground level retail on H Street, and connection to the residential neighborhood along 12TH Street. The unique geometry of the building provides visual interest that not only captivates the attention of pedestrians, but offers residents ample sunlight and inviting living spaces.
ARCH 402 | 5 Weeks | Professor Adam Ainslie


Site Plan

Site Axon


Push and Pull Diagram
Steps Diagram
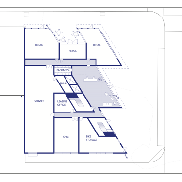
Each floor of the complex includes a mix of studio, 1 bed/ 1 bath, and 2 bed/ 2 bath apartment styles, totaling to 42 units. Amenities include a gym, mail room, and bike storage on the ground floor, and community room overlooking H Street on the 5th floor.





Ground Floor
Floors 1 & 2
Floor 3
Floors 4 & 5
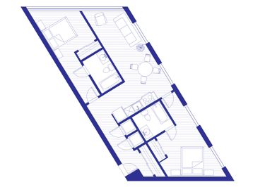
Apartment Arrangement


Concept Sketches








Lobby Perspective
Courtyard Perspective
Community Room Perspective
Studio Apartment Perspective






Studio Plan
1 Bedroom Plan
2 Bedroom Plan




Section A
Section B




East Elevation in Context - 12TH Street
North Elevation in Context - H Street
