
Ascending Unity
Located at the vibrant intersection of H Street and 12TH Street NE in Washington DC, stands a civic building and plaza that act as a new venue for the Storytelling District.
This building promotes inclusivity and accessibility through the use of a ramp system that wraps the exterior of the building and creates a rich architectural promenade that can be enjoyed by any and everyone who visits. The promenade ends on the top floor of the facility which is a space designed to be used for a multitude of storytelling events and gatherings.
The glass and polycarbonate facade allows for views from the building to the plaza and the rest of H Street, fostering connections between the building and its surroundings, uniting them as one.
ARCH 402 | 5 Weeks | Professor Adam Ainslie


H Street Elevation
Deck Perspective
Event Space Perspective
Ramp Perspective












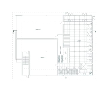
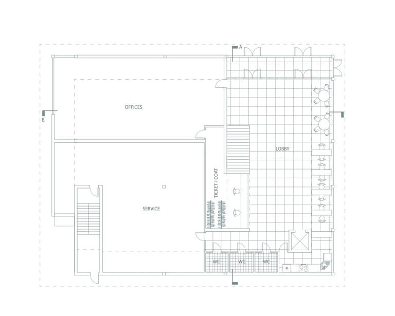
First Floor
Second Floor
Third Floor

Section Perspective








Parti
Vertical Circulation
Wrap System
Hinged Axon




Site Axonometric
Pre-function Space Perspective


Exterior Perspective


